咨询热线:
182-0534-0651

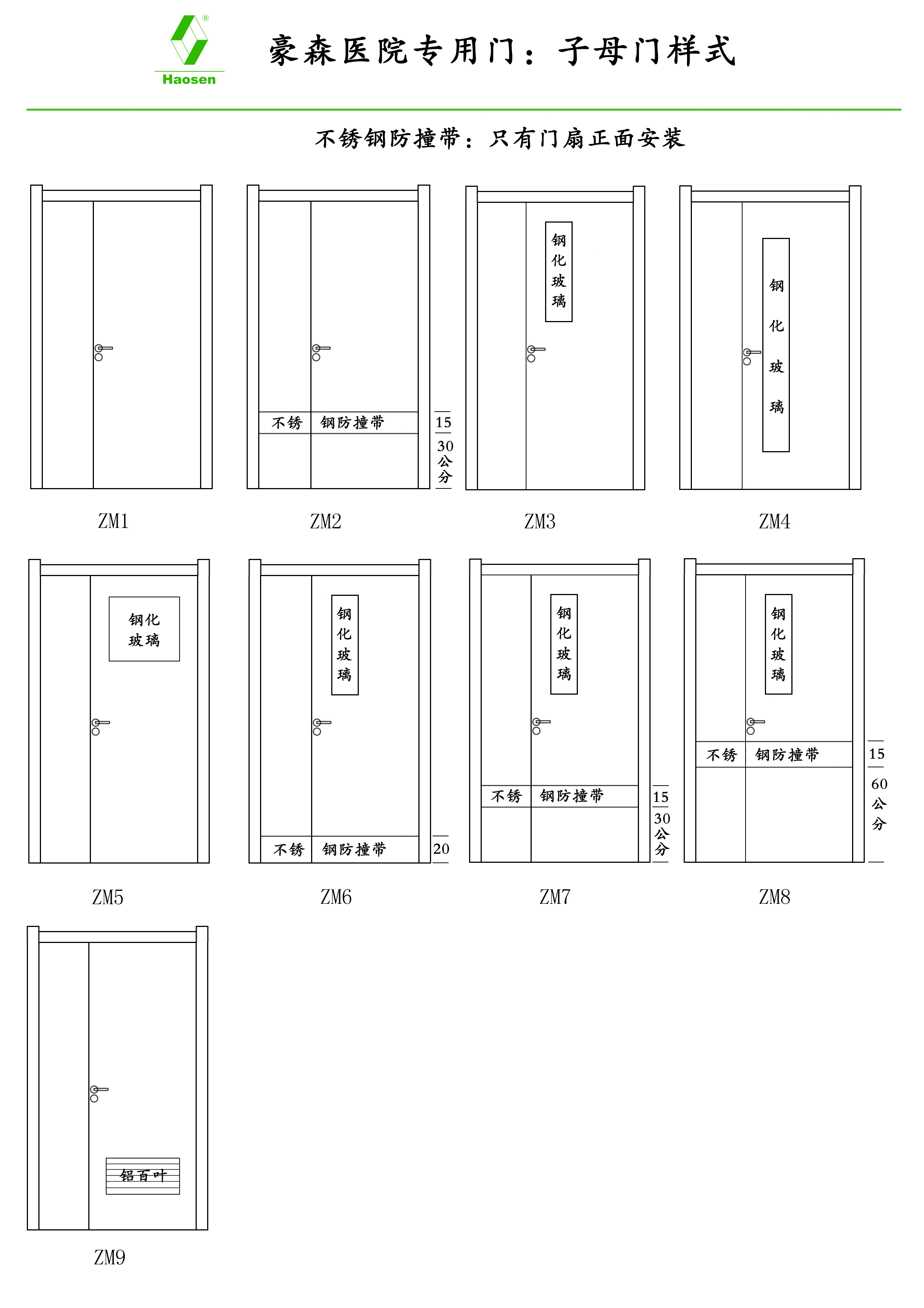
产品特点:豪森医院门参数 医院门材料特点:门扇板材防划、耐磨,硬度特别高。选用德国进口CPL防火抗菌板。 医院门款式:可根据医院要求定制,常用款式有医院单开门、医院子母门、医院对开门。 医院门颜色:医院门颜色可根据可根据医院科室定制,比如产科可选用粉红色,外科可选用浅蓝色,也可根据院方要求来定制颜色。 医院门尺寸:医院病房门的尺寸一般是在高2.1米,宽1.2米。方便手术车、换药车出入,卫生间宽度可在0.9米左右,办公室宽度1米左右即可。 医院门生产工期:豪森医院门厂家流水线工艺,而且只生产医院门,工期很短
182-0534-0651




































